031)
358-7786

상담문의

오시는 길

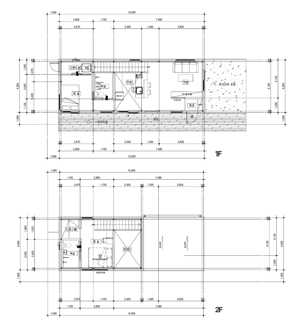
군산 기획설계


22평 (1층 15평 + 2층 6평)의 주택형 모델입니다.


건축 개요
대지위치
전라북도 군산시 옥구읍 상평리 310-13번지
면적
1층 : 52.20㎡/15.18PY
2층 : 22.08㎡ / 6.67PY
합계 : 74.28㎡ / 22.46PY

공법
FF판넬
실내바닥마감재SPC돌마루, 타일
지붕마감
칼라징크강판
실내벽마감재합지벽지, 극무광도장, 타일
외부마감
스타코벽체단열재인슐레이션
창호재독일식 1등급 시스템창호
(3중유리 레하우)


설계도



주택 외부

정면

측면

측면 2


후면




주택 단면



주택 내부




더 많은 어빌리티박스 제품이 궁금하시다면?

스마트스토어 바로가기 +

(주)한국소형주택 ABILITY BOX  대표 : 이정호 사업자등록번호 : 712-81-02304

경기도 화성시 우정읍 화곡로 110번지
Tel.  031.358.7786      Fax. 031.358.7764      Email. kshousing1@naver.com

Copyright ⓒ 2021 한국소형주택

(주)한국소형주택 ABILITY BOX
대표 : 이정호      사업자등록번호 : 712-81-02304

경기도 화성시 우정읍 화곡로 110번지
Tel.  031.358.7786      Fax. 031.358.7795
Email. kshousing1@naver.com

Copyright ⓒ 2021 한국소형주택