031)
358-7786

상담문의

오시는 길

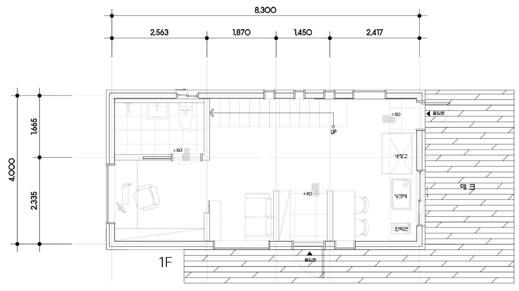
15PY / 복층 모델

57c8f051d3da0.jpg



15PY (10PY+5PY) / 복층 모델입니다.


건축 개요
면적
1층 : 33.2㎡  / 10py
2층 : 15㎡  / 4.5py
공법
ALC/목구조
실내바닥마감재SPC 돌마루
지붕마감
칼라징크강판
실내벽마감재합지벽지, 백토도장, 타일
외부마감
파벽돌, 세라믹사이딩벽체단열재인슐레이션
창호재독일식 1등급 시스템창호
(3중유리 레하우, 발틱)

설계도


cd07334adf639.jpg

a03c7b3c8d175.jpg


3D 평면도

f408b3f24fb77.jpg


주택현장 마감재 LIST
실 내
실명
마감
거실
건축주 지정 도장마감 (친환경페인트극무광, 백토도장)
바닥건축주 지정 SPC 마루
천장건축주 지정 도장마감, 건축주 지정컬러 LED 조명
가구tv선반
주방
건축주 지정 도장마감, 75X300 건축주 지정컬러 타일
바닥건축주 지정 SPC 마루
천장건축주 지정 도장마감, 건축주 지정컬러 LED 조명, 부분 팬던트조명
가구씽크 상하부장, 냉장고장, 식탁, 하이드후드, 인조대리석상판
화장실
건축주 지정 포세린타일 600X600
바닥건축주 지정 포세린타일 600X600, or 300X300
천장돔천정. 힘펠 휴젠트 온풍기, 건축주 지정컬러 LED 조명
위생도기지정 양변기 (대림or아메리칸스탠다드 업차지), 액세서리일체
심플한 샤워수전, 샤워 파티션, 세면대. 수전 +하부장 및 거울
침실
건축주 지정 도장마감 (친환경페인트극무광, 백토도장)
바닥건축주 지정 SPC 마루
천장건축주 지정 도장마감, 건축주 지정컬러 LED 조명
가구dp장
현관
건축주 지정 도장마감 (친환경페인트극무광, 백토도장)
바닥건축주 지정 포세린타일 600X600
실 외
구분
마감
파벽돌, 세라믹사이딩
바닥
데크 기초타설
지붕
칼라징크강판 / 칼라징크판넬
창호
현관문 : 건축주 지정컬러 화이버글라스도어
다용도실문 : 건축주 지정컬러 단열방화문, 내부 터닝도어
실내 ABS도어 (예림)
레하우, 발틱 (독일식)


* 실제 마감재는 설계 변경, 발주 조건 등에 따라 변동 가능성이 있습니다.



주택 외부

7882c7fdcecab.jpg

정면

c6b71e46be91d.jpg

후면

47ba19ac518af.jpg

측면 



* 이해를 돕기 위한 이미지입니다.



주택 단면

7d3a299cd6faf.jpg

36b10b8a05f60.jpg

05b6027906a01.jpg

868dddbaf5869.jpg

* 이해를 돕기 위한 이미지입니다.



주택 내부

f24f941a8ac45.jpg

현관

056816f0abda8.jpg

주방

7ee35f19b24e6.jpg

주방 / 현관 / 거실

b88776eb9e119.jpg

서재

bee6a09099f92.jpg

침실


* 이해를 돕기 위한 이미지입니다.



더 많은 어빌리티박스 제품이 궁금하시다면?

스마트스토어 바로가기 +

(주)한국소형주택 ABILITY BOX  대표 : 이정호 사업자등록번호 : 712-81-02304

경기도 화성시 우정읍 화곡로 110번지
Tel.  031.358.7786      Fax. 031.358.7764      Email. kshousing1@naver.com

Copyright ⓒ 2021 한국소형주택

(주)한국소형주택 ABILITY BOX
대표 : 이정호      사업자등록번호 : 712-81-02304

경기도 화성시 우정읍 화곡로 110번지
Tel.  031.358.7786      Fax. 031.358.7795
Email. kshousing1@naver.com

Copyright ⓒ 2021 한국소형주택