031)
358-7786

상담문의

오시는 길

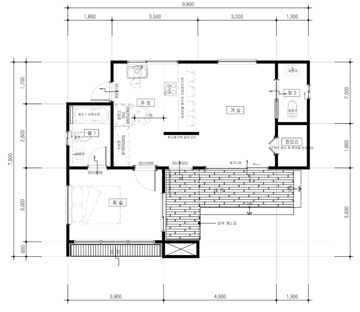
15PY / 단층 모델

839723171db9b.jpg



15PY / 단층 모델입니다.


건축 개요
면적
1층 : 50.78㎡  / 15.36py
공법
ALC/목구조
실내바닥마감재SPC 돌마루
지붕마감
칼라징크강판
실내벽마감재합지벽지, 백토도장, 타일
외부마감
세라믹사이딩, 진타맥스벽체단열재인슐레이션
창호재독일식 1등급 시스템창호
(3중유리 레하우, 발틱)

설계도

e5ce9a26eb682.jpg

3D 평면도

560fd68f87c61.jpg


주택현장 마감재 LIST
실 내
실명
마감
거실
건축주 지정 도장마감 (친환경페인트극무광, 백토도장)
바닥건축주 지정 SPC 마루
천장건축주 지정 도장마감, 건축주 지정컬러 LED 조명
가구tv선반
주방
건축주 지정 도장마감, 75X300 건축주 지정컬러 타일
바닥건축주 지정 SPC 마루
천장건축주 지정 도장마감, 건축주 지정컬러 LED 조명, 부분 팬던트조명
가구씽크 상하부장, 냉장고장, 식탁, 하이드후드, 인조대리석상판
화장실
건축주 지정 포세린타일 600X600
바닥건축주 지정 포세린타일 600X600, or 300X300
천장돔천정. 힘펠 휴젠트 온풍기, 건축주 지정컬러 LED 조명
위생도기지정 양변기 (대림or아메리칸스탠다드 업차지), 액세서리일체
심플한 샤워수전, 샤워 파티션, 세면대. 수전 +하부장 및 거울
침실
건축주 지정 도장마감 (친환경페인트극무광, 백토도장)
바닥건축주 지정 SPC 마루
천장건축주 지정 도장마감, 건축주 지정컬러 LED 조명
가구침대
쪽카페
파벽돌
바닥
건축주 지정 SPC 마루
가구붙박이소파, 테이블
실 외
구분
마감
진타맥스, 세라믹사이딩
바닥
데크 기초타설
지붕
칼라징크강판 / 칼라징크판넬
창호
현관문 : 건축주 지정컬러 화이버글라스도어
다용도실문 : 건축주 지정컬러 단열방화문, 내부 터닝도어
실내 ABS도어 (예림)
레하우, 발틱 (독일식)


* 실제 마감재는 설계 변경, 발주 조건 등에 따라 변동 가능성이 있습니다.



주택 외부

21ad28e6a6055.jpg

정면

e885a1d91868a.jpg

측면

2652e0ae0eb13.jpg

측면 2

d01ffd55f8da7.jpg

후면

* 이해를 돕기 위한 이미지입니다.



주택 단면

67896bef616fc.jpg

d702867dca934.jpg

d7ad4d517ced7.jpg

07148a4339bb7.jpg

335ad2f0d5a37.jpg


* 이해를 돕기 위한 이미지입니다.



주택 내부

4a5a9ee4681ba.jpg

주방

7e69bae0603e4.jpg

거실

c57f36f60cdf6.jpg

쪽카페

f735b946b58bd.jpg

침실

f0c8829770b87.jpg

화장실


* 이해를 돕기 위한 이미지입니다.



더 많은 어빌리티박스 제품이 궁금하시다면?

스마트스토어 바로가기 +

(주)한국소형주택 ABILITY BOX  대표 : 이정호 사업자등록번호 : 712-81-02304

경기도 화성시 우정읍 화곡로 110번지
Tel.  031.358.7786      Fax. 031.358.7764      Email. kshousing1@naver.com

Copyright ⓒ 2021 한국소형주택

(주)한국소형주택 ABILITY BOX
대표 : 이정호      사업자등록번호 : 712-81-02304

경기도 화성시 우정읍 화곡로 110번지
Tel.  031.358.7786      Fax. 031.358.7795
Email. kshousing1@naver.com

Copyright ⓒ 2021 한국소형주택