031)
358-7786

상담문의

오시는 길

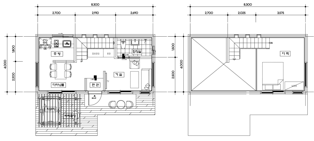
10PY / 복층 모델

72f5779d2df52.jpg



10PY (주택 10PY+다락 4PY) / 복층 모델입니다.


건축 개요
면적
1층 : 33.2㎡  / 10py
다락 : 14.3㎡  / 4.3py
공법
목구조
실내바닥마감재SPC 돌마루
지붕마감
칼라징크강판
실내벽마감재합지벽지, 백토도장, 타일, 파벽돌
외부마감
세라믹사이딩, 파벽돌 , 진타맥스벽체단열재인슐레이션
창호재독일식 1등급 시스템창호
(3중유리 레하우, 발틱)

설계도


d77181efa4fbd.jpg


3D 평면도

56720ad11ee54.jpg



주택 외부

3d46f2f5f44e9.jpg

정면

13f13862b7fbe.jpg

측면

60b63ce501fc6.jpg

측면 2

ba97955ce25b5.jpg

후면

* 이해를 돕기 위한 이미지입니다.



주택 단면

007bc64ca51db.jpg

edbe63fc8c59c.jpg

10c6529c9018a.jpg

df599f6da9c8d.jpg

cb914c802fa80.jpg

dadc30bd36f4d.jpg

* 이해를 돕기 위한 이미지입니다.



주택 내부

7dc1660a926ce.jpg

거실

04a71ae03b9af.jpg

거실 2

f7b6950b150f6.jpg

거실 3

4d3de76126201.jpg

주방

0b372440b4a5e.jpg

다이닝룸

5ed57c9744267.jpg

다이닝룸 2

dbd8c0c829a13.jpg

현관 가구 / 계단

1d62b26c50539.jpg

침실

4cca45bdd4402.jpg

파고라 (자쿠지,바비큐)


* 이해를 돕기 위한 이미지입니다.



더 많은 어빌리티박스 제품이 궁금하시다면?

스마트스토어 바로가기 +

(주)한국소형주택 ABILITY BOX  대표 : 이정호 사업자등록번호 : 712-81-02304

경기도 화성시 우정읍 화곡로 110번지
Tel.  031.358.7786      Fax. 031.358.7764      Email. kshousing1@naver.com

Copyright ⓒ 2021 한국소형주택

(주)한국소형주택 ABILITY BOX
대표 : 이정호      사업자등록번호 : 712-81-02304

경기도 화성시 우정읍 화곡로 110번지
Tel.  031.358.7786      Fax. 031.358.7795
Email. kshousing1@naver.com

Copyright ⓒ 2021 한국소형주택