031)
358-7786

상담문의

오시는 길

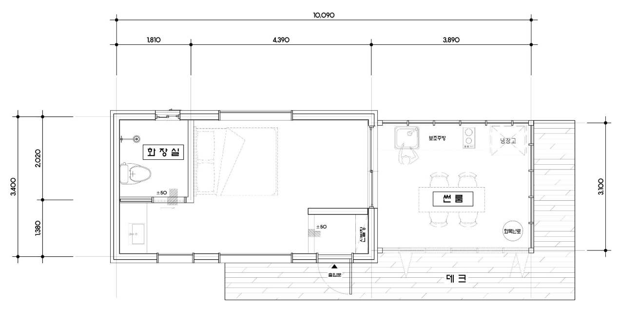
10PY / 단층 모델

2f526ef8c0bc2.jpg



10PY / 단층 모델입니다.


건축 개요
면적
1층 : 21.08㎡  / 6.37py
썬룸 : 12.05㎡ / 3.64py
공법
ALC/목구조
실내바닥마감재SPC 돌마루
지붕마감
칼라징크강판
실내벽마감재합지벽지, 백토도장, 타일
외부마감
스타코, 진타맥스벽체단열재인슐레이션
창호재독일식 1등급 시스템창호
(3중유리 레하우, 발틱)

설계도

b9ebc585b509f.jpg

3D 평면도

c8b6eb3403b71.jpg


주택현장 마감재 LIST
실 내
실명
마감
거실
건축주 지정 도장마감 (친환경페인트극무광, 백토도장)
바닥건축주 지정 SPC 마루
천장건축주 지정 도장마감, 건축주 지정컬러 LED 조명
가구-
주방/썬룸
지정부위 스타코 마감
바닥데크,타일 마감
천장스프러스 루바 위 오일스테인 마감, LED 레일조명
가구씽크 상하부장, 냉장고장, 식탁, 하이드후드, 인조대리석상판
화장실
건축주 지정 포세린타일 600X600
바닥건축주 지정 포세린타일 600X600, or 300X300
천장돔천정. 힘펠 휴젠트 온풍기, 건축주 지정컬러 LED 조명
위생도기지정 양변기 (대림or아메리칸스탠다드 업차지), 액세서리일체, 안전바
심플한 샤워수전, 샤워 파티션, 세면대. 수전 +하부장 및 거울
침실
건축주 지정 도장마감 (친환경페인트극무광, 백토도장)
바닥건축주 지정 SPC 마루
천장건축주 지정 도장마감, 건축주 지정컬러 LED 조명
가구침대
현관
건축주 지정 도장마감
바닥
건축주 지정 포세린타일 600X600, or 300X300
실 외
구분
마감
전체 스타코, 진타맥스 / 썬룸 - 폴딩도어
바닥
데크 기초타설
지붕
칼라징크강판 / 칼라징크판넬
창호
현관문 : 건축주 지정컬러 화이버글라스도어
실내 ABS도어 (예림)
레하우, 발틱 (독일식)


* 실제 마감재는 설계 변경, 발주 조건 등에 따라 변동 가능성이 있습니다.



주택 외부

7ec14024d4834.jpg

정면

0dcdb7c769936.jpg

측면

5b416408407bc.jpg

정면 2



* 이해를 돕기 위한 이미지입니다.



주택 단면

4850e57b5f1e4.jpg

29089cb99e993.jpg

f6668cb0203bd.jpg

11171c1a4edea.jpg

* 이해를 돕기 위한 이미지입니다.



주택 내부

b2642b1d51075.jpg

휴식공간 및 현관

fa15bea59dcd4.jpg

침실

f819a1058da7a.jpg

침실 2

912f25259366e.jpg

썬룸

* 이해를 돕기 위한 이미지입니다.



더 많은 어빌리티박스 제품이 궁금하시다면?

스마트스토어 바로가기 +

(주)한국소형주택 ABILITY BOX  대표 : 이정호 사업자등록번호 : 712-81-02304

경기도 화성시 우정읍 화곡로 110번지
Tel.  031.358.7786      Fax. 031.358.7764      Email. kshousing1@naver.com

Copyright ⓒ 2021 한국소형주택

(주)한국소형주택 ABILITY BOX
대표 : 이정호      사업자등록번호 : 712-81-02304

경기도 화성시 우정읍 화곡로 110번지
Tel.  031.358.7786      Fax. 031.358.7795
Email. kshousing1@naver.com

Copyright ⓒ 2021 한국소형주택